On the Rise: Ben Everitt

Click to enlarge
Ben Everitt is a graduate architect at Mellow Architects in Auckland.

Ben Everitt is a graduate architect at Mellow Architects in Auckland. Image: David St George

1 of 16
Ben was born in a Tokyo suburb near the Komazawa Olympic Park.

Ben was born in a Tokyo suburb near the Komazawa Olympic Park. Image: Supplied

2 of 16
Concept design for a feasibility study for a High Speed Rail Development in Thailand.

Concept design for a feasibility study for a High Speed Rail Development in Thailand. Image: Ben Everitt

3 of 16
Ben’s thesis proposal for the New Zealand Embassy in Tokyo.

Ben’s thesis proposal for the New Zealand Embassy in Tokyo. Image: Ben Everitt

4 of 16
Concept sketches of a pedestrian bridge.

Concept sketches of a pedestrian bridge. Image: Ben Everitt

5 of 16
Axonometric of a fire stair for a proposed metro station.

Axonometric of a fire stair for a proposed metro station. Image: Supplied

6 of 16
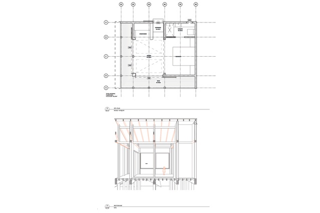
Plan and Section of the cabin in Wellington.

Plan and Section of the cabin in Wellington. Image: Ben Everitt

7 of 16
The cabin is made to be a viewing platform.

The cabin is made to be a viewing platform. Image: David St George

8 of 16
The staff at MOTAT kindly helped Ben match the exact colour of the historic plane: Short Solent Aranui.

The staff at MOTAT kindly helped Ben match the exact colour of the historic plane: Short Solent Aranui. Image: Supplied

9 of 16
Ben's model of the cabin he has designed for a client in Wellington.

Ben’s model of the cabin he has designed for a client in Wellington. Image: David St George

10 of 16
Ben with the TEAL plane he researched at MOTAT.

Ben with the TEAL plane he researched at MOTAT. Image: David St George

11 of 16
Finding the closest Resene colour match for the TEAL blue of the plane at MOTAT.

Finding the closest Resene colour match for the TEAL blue of the plane at MOTAT. Image: David St George

12 of 16
On the Rise: Ben Everitt

  Image: David St George

13 of 16
Creating the model of the cabin to be built in Wellington.

Creating the model of the cabin to be built in Wellington. Image: David St George

14 of 16
Creating the model of the cabin to be built in Wellington.

Creating the model of the cabin to be built in Wellington. Image: David St George

15 of 16
Ben’s Resene colour selection features <a 
href="https://www.resene.co.nz/swatches/preview.php?chart=Resene%20Multi-finish%20range%20%28pre%202006%29&brand=Resene&name=Jet%20Stream&srsltid=AfmBOooAXL_9Vf2Fv8sGOo08pZlfZmMhXGRpWNR8fqLHCaTgm6XKalJP"style="color:#3386FF"target="_blank"><u>Resene Jet Stream</u></a>, <a 
href=" https://www.resene.co.nz/swatches/preview.php?chart=Resene%20Multi-finish%20range%20%282016%29&brand=Resene&name=Dauntless&srsltid=AfmBOormLORed4gR9D707ZgxPkBYbcj5SbndiTPaOMtE_c2VWsvgOzdi"style="color:#3386FF"target="_blank"><u>Resene Dauntless</u></a>, <a href="https://www.resene.co.nz/swatches/preview.php?chart=Resene%20Multi-finish%20range%20%282016%29&brand=Resene&name=Mellow%20Yellow&srsltid=AfmBOopKdwiLCPo3hyPVLqCeLBGgYaxUL-xU8mOjH3DLxKPfmNtDINki"style="color:#3386FF"target="_blank"><u>Resene Mellow Yellow</u></a> and <a href=" https://www.resene.co.nz/swatches/preview.php?chart=Resene%20special%20palette%20-%20Arrowtown&brand=Resene&name=Sea%20Fog&srsltid=AfmBOopInxQVppaUZI-s6Kagks7qsqW9QilRpzU43Uo0QxcXT1bRGqn2"style="color:#3386FF"target="_blank"><u>Resene Sea Fog</u></a>.

Ben’s Resene colour selection features Resene Jet Stream, Resene Dauntless, Resene Mellow Yellow and Resene Sea Fog.

16 of 16

ArchitectureNow’s On the Rise series, supported by Resene, profiles young designers from across the country who are shaping the future of the industry. In this instalment, we talk to graduate architect Ben Everitt of Mellow Architects.

Amanda Harkness (AH): Tell us what led you to a career in architecture? Were there any particular childhood experiences that influenced you?

Ben was born in a Tokyo suburb near the Komazawa Olympic Park. Image:  Supplied

Ben Everitt (BE): I was born in the neighbourhood of Komazawa, which is most known for its sports park that hosted the 1964 Tokyo Olympic Games. Although I’m very fond of this park, my childhood consisted of moving around a fair bit because of my dad’s job in tourism marketing. To put this into perspective, before starting architecture school, I moved from Tokyo to Wellington, followed by Rotorua, Singapore, Suva, Queenstown, Shanghai and, finally, back to Wellington. I believe people get confused when they ask me where I’m from because I can’t give them a proper answer so it’s more convenient just to tell them the place of my previous postal address. I think the idea of home for me is something that is transient, and this might have influenced my architecture quite greatly.

Throughout school, I generally enjoyed studying science and making things, and there was one assignment for PE class that I distinctively remember, where we were required to make a presentation about the Beijing Olympics.  I chose to focus on the National Aquatic Centre, known as the ‘Water Cube’, and my attempt at making a model of it involved cutting up a blue-coloured plastic PET bottle, piecing it together into a cube, and warping it with a cigarette lighter. 

I think what really drew me into studying architecture was the graphics class that was offered at Wakatipu High School in Queenstown. We were able to learn the fundamentals of technical drawing, however, I discovered that I naturally drew in perspective rather than orthogonally. Regardless, at the time I was really interested in energy-efficient homes so I thought I’d shoot my shot at Victoria University of Wellington.

AH: The architecture in cities like Singapore is a world apart from that found in Fiji’s Suva. Were you aware of this from an early age and was there any particular architecture that you were drawn to?

BE: Living in Singapore and Suva are, indeed, worlds apart but, in retrospect, there are unique similarities in the way these cities have been designed. Both are port cities, once part of the British Empire, and the city planning is highly influenced by maritime activity. The historic city centre is usually right next to the ports, featuring hotels, post offices, banks, in its former colonial style. Over time, these cities began to develop enclaves, like the Dutch, French or German Quarters, or the Chinatown. Buildings in this colonial style could have a Georgian, Victorian or Edwardian façade but with large French doors or louvres that open up the entire floor for cross ventilation. The Raffles in Singapore or the Grand Pacific in Suva are great examples of historic hotels that follow these principles of natural ventilation. Both cities have this quaint but cosmopolitan architecture built from the exchange of ideas between the local and the global, which has made it favourable to a tropical urban environment.

An early childhood experience that I distinctly remember was the amount of mischief that we accomplished as kids living in our condominiums in Singapore. We lived in a town house where the living room faced a communal green space, and the wind passed through the whole house. The green space was necessary for kids to play around in a crowded city. We would sneak into plant rooms to play hide-and-seek, throw paper helicopters off balconies, and sometimes managed to climb up to the roof of a 22-storey apartment building. It was quite the vertical childhood experience.

As a complete contrast, when we moved to our house in Suva, we would experience water outages during cyclone season. To prepare for this, I helped my dad set up a tarpaulin membrane roof to collect rainwater, sometimes up to three weeks’ worth. We would pass the time growing pawpaw trees, kayaking on the beach and spotting the names of ships entering the harbour. Compared to life in Singapore, it really taught me the potential of living off the land.

AH: Tell us about your thesis while at Vic. How did you land on your topic – ‘Intangible Borders’?

Ben’s thesis proposal for the New Zealand Embassy in Tokyo. Image:  Ben Everitt

During our 4th year, we had a Research Methodologies paper led by Sam Kebbell called ‘Propensities’. It was a semester where our entire year-group was under the pump to find their thesis supervisor. At the time, I was actually interested in focusing my thesis on Chinatowns and ethnic enclaves from my experience living abroad, however, many academics were confused as to why I was interested in Chinese architecture given how I’m ethnically Japanese. I have unfortunately never actually lived in the country that I was born in and the only way to understand my own cultures was either through the Japanese Embassy or New Zealand High Commission.

Concept design for a feasibility study for a High Speed Rail Development in Thailand. Image:  Ben Everitt

Over the southern hemisphere summer of that year (2017), I was offered an internship at Koken Architects in Tokyo and it was the first opportunity to actually start living and working in Japan. My initial work consisted mainly of 3D modelling, until the final three weeks when I was assigned to deliver concept designs for a High Speed Railway Station Proposal to be developed in Thailand. Over the course of three weeks, I was modelling a roof that was inspired by the vernacular architecture, its contemporary counterparts, national flowers, and how the climate differs from North to South. The final concept proposal was to model a membrane stacked roof, which enables hot air to rise and escape through the vents, while allowing for cold air to flow through the platforms by the pressure difference. I worked under the Master Architect Shigenaga Mori, who approved my design. He was a former professional boxer who decided to pursue a career in architecture after getting knocked out in his first fight. He told me how he appreciates the work of Miles Warren, and has kept in touch with a penpal from Wellington. By the time I had finished the concept, I was jokingly told by my former Director Tsuchihashi san that I shouldn’t be going back to study at University when I need to stay in his office and finish off the work full time.

The experience of that summer was the main influence behind my Master’s thesis, “Intangible Borders”. More than anything, it was an exercise of how to negotiate between different cultural contexts as a designer. I was constantly second guessing myself while writing this academic report at University, since all this time I could have been actually practicing this at the office. Suffice to say, following through with publishing academic research alongside colleagues that I have studied with for the past five years actually helped me grow as a person. It is now a toolbox that I take pages out every now and then to help with my current design work.

AH: You moved to Japan in 2019 after you finished your Master’s degree to work at Koken Architects again. What did you take from that experience?

BE: For me, working at Koken Architects was an incredibly eye opening and humbling experience. They are an architecture firm founded in 1963 by architects, engineers and academics who worked on the design and construction of the Tokaido Shinkansen (Bullet Train) Stations. They have continued to work on railway infrastructure across Japan, and are planning to expand their scope of work internationally.

Example of a multi-functional toilet introduced across Tokyo. Image:  Supplied

As a grad, it was necessary to focus on the fundamentals, and I was assisting the concept design of suburban train stations that needed to be modernised into an overbridge style station with an accessible pedestrian bridge. It was part of the nationwide goal of welcoming the entire world for the 2020 Tokyo Olympics by upgrading the city to be as accessible as possible. As a grad, this meant drafting handrails, fire stairs and EV shafts with the overall planning, as well as coming up with the overall concept for the building exterior. Accessibility in this case was not just limited to wheelchairs or prams but also making facilities socially accessible, the most notable example being the multi-functional toilet as part of the Tokyo Toilet Project.

A key takeaway from working at Koken Architects was that, for large complex infrastructure projects like train stations, the architects play a vital role to see beyond just the nuts and bolts, and advocate for the passengers. There are many human-centered design elements that make the journey comfortable, as well as developing the station as a public space in the city centre.

Relative to the scope and timeline of the projects, the time that I have spent at Koken was brief. As someone who adjusted to life in Wellington for five years, it was challenging to adjust to the big city. After witnessing the popularity of Jacinda Ardern even in Japan, I thought that New Zealand might be an exciting place to return to.

AH: Now you’re back in Aotearoa and working with Mellow. What type of work are you doing in the studio?

BE: As a small and young practice, we work on a combination of infill housing, lifestyle blocks and small-scale commercial and industrial projects. We use the size of the office as a strength, and adapt quickly to market trends.

My director Rois has been an incredibly supportive and encouraging mentor. He has given me quite a few opportunities to shape the identity of his practice. Outside of documentation, I’ve been designing the website, office branding and the occasional client onboarding. We have an incredible diversity of clients that we work with, and an opportunity to learn how to make work your own. 

AH: You’re also doing some independent work for friends. Tell us about the thinking behind your cabin project.

BE: This cabin is designed for a couple who has recently had their first born, and they wanted to build a sleepout as a private space for when their child grows older.

Ben’s model of the cabin he has designed for a client in Wellington. Image:  David St George

It’s aiming to take advantage of the new legislation of building granny flats without a building consent. We found that the main issue with building a sleepout on any property is the access and earthworks over difficult sites. As a solution, we have designed a post-and-beam timber structure raised above the ground to limit the amount of digging. The structure is partially prefabricated, while the remainder is assembled on site using a combination of timber members that are fit for purpose. We are working through the services to be self-sufficient, to avoid needing to connect to civil pipes.

AH: What appeals to you about the field of architecture and what inspires your practice?

BE: I think what really appeals to me about architecture is how much we can connect with people through the language of building. Although the profession has its own challenges, I believe this culture of wanting to learn the best way to build something is definitely a common interest that we share, no matter where we come from in the world.

In Tokyo, I worked alongside an intern who was sent from Chandigarh University College of Architecture in India. At the time, India and Japan signed a joint venture agreement to build a High Speed Railway network connecting Mumbai and Ahmedabad, and she was sent by her University to bring knowledge back to her home country. We worked together on a few concept designs, and began to understand just how committed architects and engineers from India are towards modernising their cities. I also had aspirations of my own to bring back knowledge to Aotearoa New Zealand, as well as showcasing Kiwi innovations to Japan as well. However, this has not quite manifested yet.

AH: Are there any areas of design or practice you’d like to explore further?

BE: In retrospect, I believe that this should have been my field of focus from the very beginning, but I would like to become an expert in timber design. In the west, the use of engineered timber is highly prevalent, however, in the east, the culture of building with solid timber by hand is still preserved. I would like to somehow encourage more of this cross-cultural exchange in sustainable timber design, not just between Japan and New Zealand but throughout the Pacific rim.

AH: What do you find one of the most challenging aspects of working in architecture?

BE: I believe one of the main challenges for me while working in architecture is trying to establish a clear specialisation to offer as a service. If a student of medicine wants to become a pediatrician, there are clear pathways towards specialising in pediatrics; often involving a residency. In architecture, however, even if we try to specialise in a particular field of research, it might be a challenge to find the exact office, senior designer and project to apply your knowledge towards. Even more challenging is to find a consistent stream of projects with a similar brief to build that portfolio of expertise. 

 Image:  David St George

AH: You’ve been involved in the wider sector recently, such as the Asia Kiwi Architects pecha kucha talk you recently gave and the speed mentoring you took part in for Architecture + Women. What does this participation mean to you?

BE: When you say ‘wider sector’, I would define this as the City of Auckland as a whole. As Jane Jacobs once said, “Cities are designed for everybody, only if, and only when they are made for everybody.” As professionals, our work has a significant influence on the way the built environment is shaped and I genuinely believe it is essential for architects to make appearances in community events. Especially for recent graduates, it opens up the opportunity to exercise all of the creative skillsets picked up during University, which cannot always be directly applied to architectural practice. Just the act of showing up, presenting ourselves to the general public, and receiving their feedback about their thoughts on the built environment has improved the way I design and communicate.

My pecha kucha talk during Architecture Week was as intended, literally just a ‘quick talk’ focusing on moments during my time so far in practice that felt relevant to the theme of ‘Architecture of Crisis’. Looking back, it was a chance to realise just how much I learnt about structures and seismic design while studying and working in both Japan and New Zealand. I attended the event hosted by Architecture + Women as a mentee, and it was a chance to show a diverse range of practitioners my cabin design to get their feedback and opinion.

The most challenging event, by far, to be a part of was the recent Urban Art Village, hosted by Matt Liggins. He has really helped me realise that I don’t have to perfectly curate this career where I invent some seismically strengthened, flood proof, cyclone proof climate crisis cabin inspired by all of my life experiences. Sometimes, for your own sanity, you just have to make things simply for the sake of making.

AH: Tell us about your mood board. What does it represent and how did you select the colours?

The cabin is made to be a viewing platform. Image:  David St George

BE: My mood board is a selection of materials that I want to specify for the cabin design and I thought I’d take this chance to find some paint finishes and colours that fit my client’s personalities. The client is a pilot from Nelson and the sleepout is to be a control tower for the children to spot their mother landing her plane along Wellington Airport. I wanted to find a colour that closely resembles the colour of planes serviced by the Tasman Empire Air Lines (TEAL).

Given how many different types of teal could be chosen, I was able to narrow down my decision by visiting the aircraft hangar at MOTAT and, with the kind help of the museum staff, I was able to find an exact match of the colour of the plane with Resene Dauntless. I based this as my primary colour to be painted on corrugated steel cladding with a Resene Pre Coated Steel Primer; followed by Resene Jet StreamResene Sea Fog and Resene Mellow Yellow as complementary colours for the interior.

Ben’s Resene colour selection features Resene Jet Stream, Resene Dauntless, Resene Mellow Yellow and Resene Sea Fog.

See more from the On the Rise series here.


More people