Structural timber in the small city

Click to enlarge
The view of the two-level Bridge Street tenancy shows the laneway entrance on the right.

The view of the two-level Bridge Street tenancy shows the laneway entrance on the right.

1 of 12
The second-floor timber construction includes timber joinery for the office partitions.

The second-floor timber construction includes timber joinery for the office partitions.

2 of 12
The second-floor tenancy with LVL posts and beams.

The second-floor tenancy with LVL posts and beams.

3 of 12
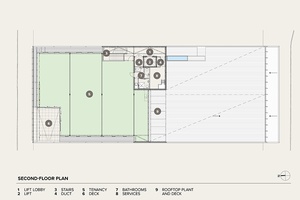
The second-floor office opens to a deck area in the northwestern corner.

The second-floor office opens to a deck area in the northwestern corner.

4 of 12
Left: The interior laneway joins Bridge Street and Wakatu Lane, showing CLT stairs and the CLT floor above. Right: The timber cross brace on the second floor.

Left: The interior laneway joins Bridge Street and Wakatu Lane, showing CLT stairs and the CLT floor above. Right: The timber cross brace on the second floor.

5 of 12
The view of Tinline’s three-storey façade from Wakatu Lane shows: the raised ground-floor level and recessed entry ramp; the start of the steel cross brace; the aluminium sunscreen; and the pre-cast concrete sidewall balustrade at the top level.

The view of Tinline’s three-storey façade from Wakatu Lane shows: the raised ground-floor level and recessed entry ramp; the start of the steel cross brace; the aluminium sunscreen; and the pre-cast concrete sidewall balustrade at the top level.

6 of 12
Structural timber in the small city

 

7 of 12
Structural timber in the small city

 

8 of 12
Structural timber in the small city

 

9 of 12
Structural timber in the small city

 

10 of 12
Structural timber in the small city

 

11 of 12
Structural timber in the small city

 

12 of 12

Chris Barton explores Irving Smith Architects’ innovative use of timber in a three-tenancy commercial building for Tinline Property in Whakatū Nelson.

I’m in the heart of Whakatū Nelosn’s CBD on the northern side of Wakatu Lane, with Jeremy Smith and Andrew Irving of Irving Smith Architects. We’re looking across the lane to a three-level commercial building for Tinline Property — the second iteration of a building type they call WallÉ, in a whimsical homage to the endearing, longnecked, square-headed eco warrior robot from Disney’s Pixar Animation Studios. WallÉ-X aims for greater use of timber amidst city environments where town-planning rules and fire regulations make that difficult.

The second-floor tenancy with LVL posts and beams.

The site is long, extending through to a frontage with Bridge Street where the building drops to two levels, more in keeping with the surrounds. But, from Wakatu Lane, the building does stand out. The ground floor is about a metre higher than street level to anticipate a one-in-100-year flood event. Have they experienced flooding here before? “I’ve never seen it this high,” says Irving. “But I’ve seen the car park fill.” The level change is negotiated via recessed stairs and a ramp running the width of the building — the overhang of the floor above providing both shelter and shade for the ramp and entry stairs.

Covering the first floor and about half the secondfloor façade is a bronze perforated aluminium sunscreen elegantly faceted in a diamond pattern. Looking up to the second floor, there’s a carefully detailed, extended “shark’s mouth” eave and a recessed verandah area in the north-western corner. What’s harder to notice is that the top-floor walls are set back about 1.2m from concrete balustrades on each side boundary — a setback that, under the Building Code fire-protection requirements, provides maintenance access to the top-floor cladding and allows building in timber. It also provides pleasant outside space for the top-floor tenancy. “This doesn’t look like we’re cheating the fire code,” says Irving. “It just looks like a deck and there’s a lot to be said for putting less building on the north-west corner.”

What’s also really different are huge cross braces, partially visible through the glass on both ends of the building. At the Wakatu Lane end, the cross brace begins outside at ground level as a chunky length of steel, which, for the first floor, morphs into an interior steel flitch brace, comprising a steel plate sandwiched by LVL timber on both sides. By the time the brace crosses into the second floor, it’s reduced in size and is made entirely of LVL. The diagonal brace is actually a K-brace with a steel post beside it that also reduces in size as it goes up. Viewed as a whole, it presents a textbook diagram of just what’s needed to resist lateral loads across the building. It’s also a metaphor for the design journey of moving from a reliance on concrete and steel for commercial buildings to finding ways to make wood work.

Left: The interior laneway joins Bridge Street and Wakatu Lane, showing CLT stairs and the CLT floor above. Right: The timber cross brace on the second floor.

As we walk through a narrow laneway on the eastern side of the site connecting to Bridge Street, it becomes clear that the building is mainly made of timber — LVL posts and beams plus CLT floors and stairs, carefully inserted into fire-resistant, pre-cast concrete boundary sidewalls (which include the top-floor balustrades) and sitting on a concrete ground floor. Irving says the key question throughout the design process was: “Where can we use timber as a replacement for something we would usually make out of concrete or steel?” As Smith puts it: “We’re trying to make a timber building. We just have to use concrete in some places so we can build on the site.” In other places, such as in the timber truss roof, steel fixings are needed to connect to the concrete. “There’s about six tonnes of steel above us grabbing hold of the concrete walls,” says Irving.

Why do they do it? Because they want to demonstrate ways in which to achieve carbon responsibility on small city sites. If you compare the embedded carbon of WallÉ-X to that of a typical concrete or steel building on the same site, WallÉ-X’s near 2000m2 of commercial floor area has a reduced carbon footprint of around 500,000kgCO2-eq or 250kgCO2eq/m2.

That’s a significant improvement on WallÉ-X’s predecessor, the Forsyth Barr building (WallÉ), completed in 2022 (see architecturenow.co.nz/ articles/the-inside-outside-thing-at-work/), which saved around 50,000kgCO2-eq or 70kgCO2-eq/m2.

The key point being demonstrated here is that structural timber and the small city don’t readily coexist. Structural timber buildings almost inevitably require large, campus-style sites, says Irving Smith, because of fire rating.

City buildings typically require both internal and external fire rating. Internal fire rating affects structural timber sizing through char ratings, and connections, finishes and separations but, generally, not where structural timber buildings are located. However, external fire ratings ensure that a fire won’t burn to or from a neighbour. “Part of it is about the notion of property ownership,” says Irving. “The boundary is the thing you need to protect in a Fire of London situation — that’s where the fire code comes from.”

The second-floor office opens to a deck area in the northwestern corner.

This presents a limitation to structural timber buildings on small city sites, says Smith. While concrete is fire resistant, externally durable and able to be constructed to the boundary, structural timber requires fire-rated claddings and, therefore, separation from neighbours to enable access for the claddings to be maintained. These fire setbacks are generally applied irrespective of building or site size — which means structural timber typologies become increasingly financially viable on larger sites where separations between buildings can be more readily offset against larger floor areas.

Smith poses the question: “Most cities are made up of small tenancies. So, does that mean the small fine grain of smaller cities has to be merged together to make big sites so we can build in timber?”

He says the WallÉ typology asserts that the fine grain of cities is valuable. “We’re not going to amalgamate sites to build in timber. We’re saying we are going to come up with a typology that allows us to build in timber but use concrete and steel to facilitate location.”

While, in the face of the climate emergency, the quietly radical WallÉ-X on its own may represent a small carbon-responsible start, Irving Smith is keen to spread its new gospel. “As any mathematician will tell you,” says Smith, “small numbers add up to big numbers.”


More projects