Quinn Bar: Strikingly balanced

Click to enlarge
The bar, where the RGB lighting system, rich materials and bar content cohesively mix to create the unique mood of Quinn Bar.

The bar, where the RGB lighting system, rich materials and bar content cohesively mix to create the unique mood of Quinn Bar. Image: Jono Parker

1 of 13
The connection of bar and customer lounge spaces.

The connection of bar and customer lounge spaces. Image: Jono Parker

2 of 13
Existing hexagonal columns incorporated into the perimeter booth seating.

Existing hexagonal columns incorporated into the perimeter booth seating. Image: Jono Parker

3 of 13
The mirrored table-tops and lighting effect on a cocktail.

The mirrored table-tops and lighting effect on a cocktail. Image: Jono Parker

4 of 13
The lighting can be implemented in a range of way; here, the more neutral lighting accentuates the blue upholstery.

The lighting can be implemented in a range of way; here, the more neutral lighting accentuates the blue upholstery. Image: Jono Parker

5 of 13
Custom made, stainless steel wall linings under blue light.

Custom made, stainless steel wall linings under blue light. Image: Jono Parker

6 of 13
Drawing inspiration from the 70s era of de Sede's Terrazzo sofa, the seating at Quinn elegantly wraps around the perimeter of the space. This custom-crafted banquette not only enhances the room's aesthetic but also invites a cosy, communal atmosphere for guests to enjoy.

Drawing inspiration from the 70s era of de Sede’s Terrazzo sofa, the seating at Quinn elegantly wraps around the perimeter of the space. This custom-crafted banquette not only enhances the room’s aesthetic but also invites a cosy, communal atmosphere for guests to enjoy. Image: Jono Parker

7 of 13
Quinn Bar: Strikingly balanced

  Image: Supplied

8 of 13
Custom made light fittings and mirrored top panels to the walls creating a feeling of spaciousness.

Custom made light fittings and mirrored top panels to the walls creating a feeling of spaciousness. Image: Jono Parker

9 of 13
Rich blue tones incorporated throughout upholstery, paint and lighting.

Rich blue tones incorporated throughout upholstery, paint and lighting. Image: Jono Parker

10 of 13
Featured RGB lighting within custom designed ceiling cove.

Featured RGB lighting within custom designed ceiling cove. Image: Jono Parker

11 of 13
Lighting shift from cool blue tones to warmer as the night progresses.

Lighting shift from cool blue tones to warmer as the night progresses. Image: Jono Parker

12 of 13
Warm lights interacting with the stainless steel panels, creating playful dimensions.

Warm lights interacting with the stainless steel panels, creating playful dimensions. Image: Jono Parker

13 of 13

Hidden behind an unassuming entrance off Mills Lane, beneath one of Auckland’s most iconic heritage buildings, lies Quinn Bar — a moody, immersive cocktail lounge unrestricted by its small floor plan.

Located in the remnants of a corridor and bike storage unit of the former 1924 department store at 131 Queen Street, this 75m2 venue by Izzard Design has been completely reimagined by Kate Dalton and Paul Izzard. Working for a client with a strong background in creating beloved Auckland venues like The Jefferson, which tragically closed due to the Auckland floods, Izzard approached this project with a clear vision to design a refined environment that felt anything but confined.

 Image:  Supplied

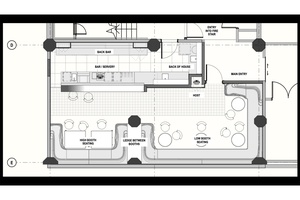
Despite its small size, Quinn Bar was meticulously planned for functionality, from Complete Construction’s renovations to the client’s operation strategy. Partition walls that separated the storage space and corridor were removed, the bathrooms were strategically relocated, and the kitchen was scaled back to remove large and unnecessary commercial kitchenware. These changes allowed the venue to maintain the maximum footspace for the bar and lounge. The streamlined back-of-house — made possible by the venue offering light food and the option of ordering food from elsewhere — allows the staff to operate efficiently in tight quarters without sacrificing the guest experience. 

The connection of bar and customer lounge spaces. Image:  Jono Parker

Perhaps the most eye-catching element of the bar is the moody yet bright use of colour. Blue tones were favoured for the dual ability to soothe and excite. This tonal focus extends from the carpet seating areas and tiled walkways, wall treatments to upholstery. The main lounge area features a luxurious custom booth seat, inspired by the iconic 1970s de Sede Terrazzo sofa. Upholstered in deep, rich blues, the booth wraps the perimeter of the room and divides into two zones — one side more intimate with high booth seating, the other more open and playful with low booth seating. This clever zoning allows guests to use the space in any way to suit their mood. There is a sense of depth and variety within a single, continuous space.

Warm lights interacting with the stainless steel panels, creating playful dimensions.  Image:  Jono Parker

The cohesive material selection sets a tranquil, immersive backdrop to the star of the show, the RGB lighting system. The lighting seamlessly integrates into the architectural coves and ceiling fixtures. As the evening unfolds, the lighting imperceptibly shifts from cool, tranquil blues to warmer, more intimate golden hues, mirroring the dynamic moods of a cocktail bar throughout an evening. For returning patrons, no two visits feel the same — each one offering a slightly different sensory experience dependent on their seating arrangement or lighting at the time of arrival.

Rich blue tones incorporated throughout upholstery, paint and lighting. Image:  Jono Parker

Custom polished stainless steel wall linings on the bar side introduce a reflective quality that plays with the lighting and multiplies the visual depth. The sleek vertical steel not only references the Art Deco history of the building but also bounces light in unexpected ways, making the narrow space feel more expansive. Mirrored table-tops create more moments of depth and reflect the moody lighting, making items placed on the tables a piece of temporary art. Other design cues from the heritage site were woven into the modern aesthetic. The existing hexagonal columns were retained and integrated into the booth seating layout. These historic elements anchor the otherwise futuristic palette, striking a balance between old and new.

The connection of bar and customer lounge spaces. Image:  Jono Parker

The design makes an impact. A recent visitor to the bar stated, “Quinn Bar was a heady mixture of futuristic Tron-like lighting with an enticing Gatsby-esque sophistication.” 

With a total capacity of just 30 patrons, Quinn Bar offers a sensory journey — a design-led hideaway where architecture, lighting and hospitality intertwine. It’s proof that bold ideas don’t need big spaces. Quinn offers something rare: an experience that feels both exclusive and inviting, intimate yet expansive, nostalgic yet new. A space ready for any guests’ expectations of a cocktail bar. 

Quinn Bar was the Hospitality winner in the 2025 Interior Awards.
See the live presentation from Paul Izzard here

2025 Interior Award citation

“A compact yet striking hospitality project, Quinn Bar delivers originality and delight. Bold use of lighting and reflection creates a sense of escapism with a subtle futuristic edge, while deco-inspired detailing pays tasteful homage to the building’s heritage. A great deal of thought has gone into the design, from the sculptural seating, which weaves through the space adding softness and form, to the custom stainless-steel wall lining surprising with its shimmer, to the digitally controlled, adaptable lighting adding atmosphere to the interior. Quinn Bar is an underground gem with personality to burn — immersive, expressive and unforgettable.”


More projects